When we went RV shopping back in 2010, we weren’t looking for an RV to live in full-time. That scenario wasn’t even a glimmer in our eyes. We shopped with the intent of using the RV part-time and for extended trips during the winter months – snowbirding.


We already owned a truck; an F-250 with a crew cab and extended bed. This truck was the perfect fit for our truck camper. This sweet little setup allowed us to pull our boat or wave runners and enjoy land AND water.
As much as we enjoyed the truck camper and watercraft’s, it wasn’t a setup conducive for the extended travel we had hoped to do. We wanted to travel longer and further. Although knowing what we know now, we wish we had kept the truck camper and used it for an Alaskan excursion. Ah, twenty-twenty hindsight!
Our RV
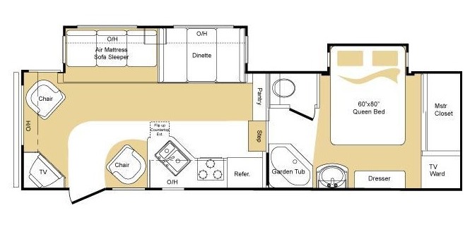
Alas, not wanting to dip into savings or go into debt for an RV, we traded in all the toys for a new 2011 Keystone Laredo 266RL 5th wheel. At a modest 31 feet long, we knew she could squeeze into a lot of National Parks, National Forests, and State Parks. For us, it’s all about location and views. And let’s face it….. size does matter!

Why the Keystone Laredo 266RL 5th wheel? At the time, it was the only floor plan that fit the way WE like to live and kept us under a 32-foot max length.
Even though we purchased her new, as a matter of fact, she was still on the assembly line when we signed the papers, we’ve still done a little remodeling and a bunch of repairs. When one lives in a home that is forever moving, repairs are to be expected. Traveling down the road, rough roads I might add, is tantamount to a perpetual earthquake.

In June of 2013, we sold the house on a whim and moved into the RV full-time. Since we decided not to sell my Toyota Tacoma, we occasionally travel with both trucks. When we’re stationary for any length of time, it’s wonderful having that second smaller vehicle. The little Toyota Tacoma is also great for back road 4×4 explorations. We’re able to store it in Phoenix, Arizona when it’s inconvenient for us to travel with that second vehicle.

Our journey to full-time RVing
Our story is a little different than most. We didn’t plan or dream about selling out and moving into the RV full-time. After all, my career and passion centered around the housing industry. How could I possibly give up a sticks and bricks house?
My mom passed away in 2011 and I was blessed to have time with her before her passing. During her last days, we were able to talk for hours. Some of my parent’s best years were those traveling the country in their motorhome. She encouraged Al and me to get out there and LIVE while we were still young and healthy.

In her honor, Al and I took a six-week road trip in February of 2012… my mom’s birth month. It was a fantastic trip that was over before we knew it. My mom’s encouragement and this trip were also the catalysts for starting the blog.
Upon our return from our six-week adventure, we began to plan a longer trip for the winter of 2012 – 2013. It was during that winter trip that we ran into lots of full-time RVers and several blog followers. Al and I started talking about full-time RVing. Yes, no, maybe so!
When we reluctantly returned home from that four-month trip, we walked into the house, and within 5 minutes we decided “Let’s do it“. Three months later, we were living in our RV full-time (June 2013). I won’t lie, it was an emotional rollercoaster filled with doubt. The process was exhausting and overwhelming.
Full-time RVing isn’t always easy, especially when ill, and it’s definitely not for everyone, but it works for us. We’re living life and every day is an adventure. Simplify, minimize, and live every day as if it’s your last. You never know what tomorrow will bring!
September 2021 marks the end of our Full-time RV journey. We now have a home base in the Phoenix area and RV part-time … well, the plan is to part-time RV, but right now we are in-between RVs. We bid farewell to our beloved Keystone Laredo in early 2022 and have yet to find the right nimble rig for us. Van, Class B or C, Travel Trailer? The search continues!








